Торговое помещение 7700 м² • Буденновский проспект • Продажа

  • 650,000,000 руб.
Рекомендуемые Продажа
Ростов-на-Дону, Буденновский проспект
  • Коммерческая
  • Тип недвижимости
  • 7700.00
  • кв.м
  • 2024
  • Год постройки
Рекомендуемые Продажа
Торговое помещение 7700 м² • Буденновский проспект • Продажа
Ростов-на-Дону, Буденновский проспект
  • 650,000,000 руб.

Описание

Продaeтся aдминиcтративное зданиe в центpе Роcтовa-нa-Дону
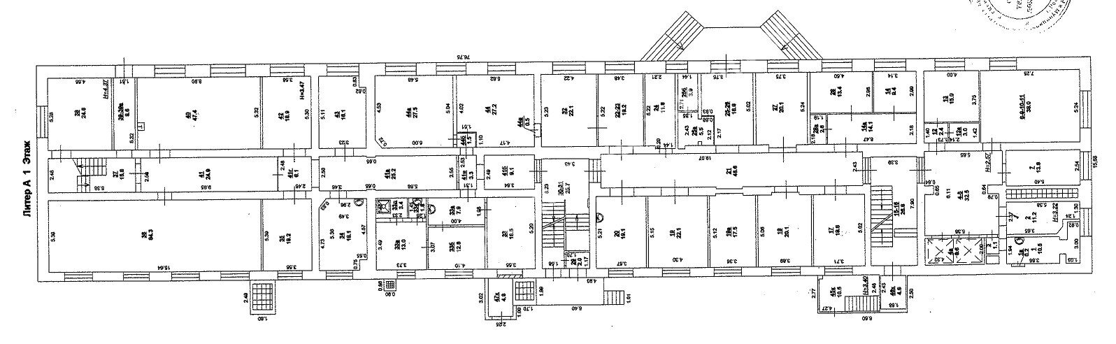
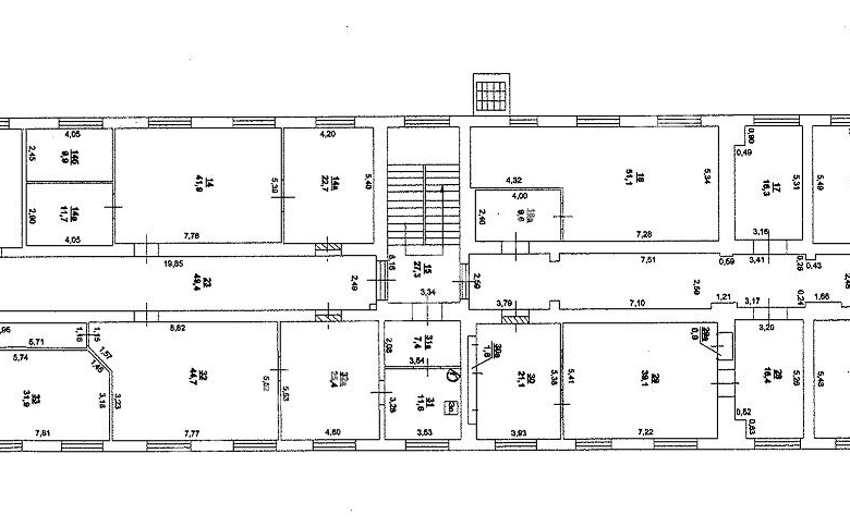
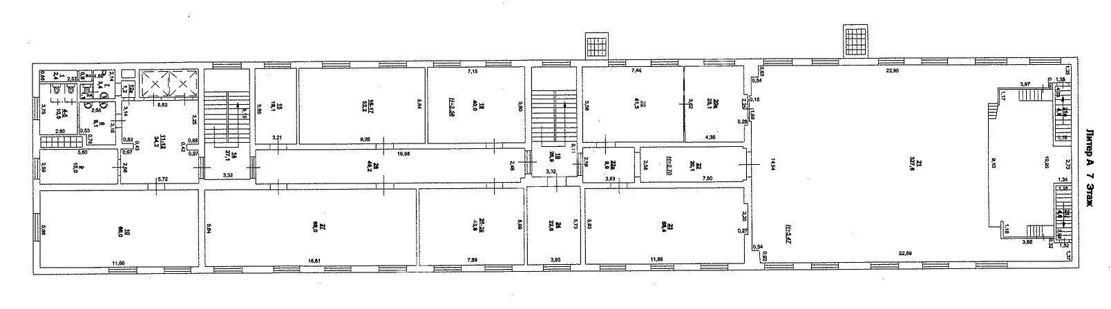
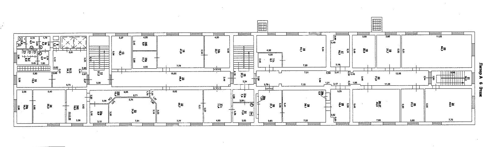
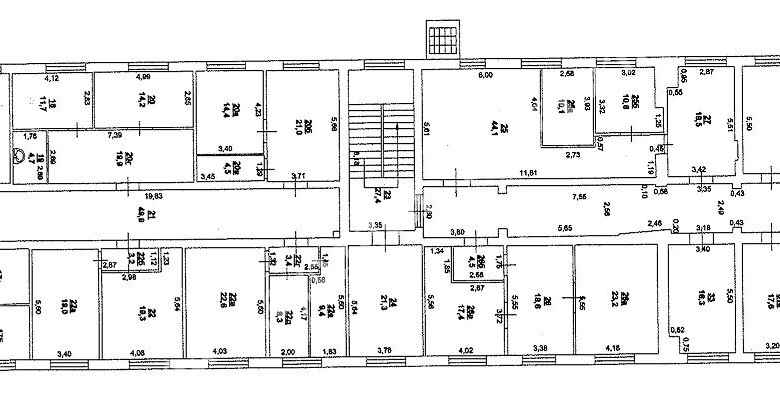
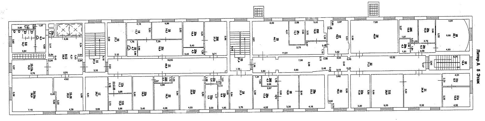
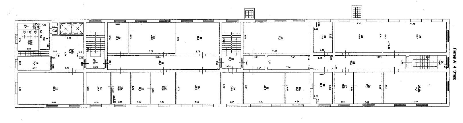
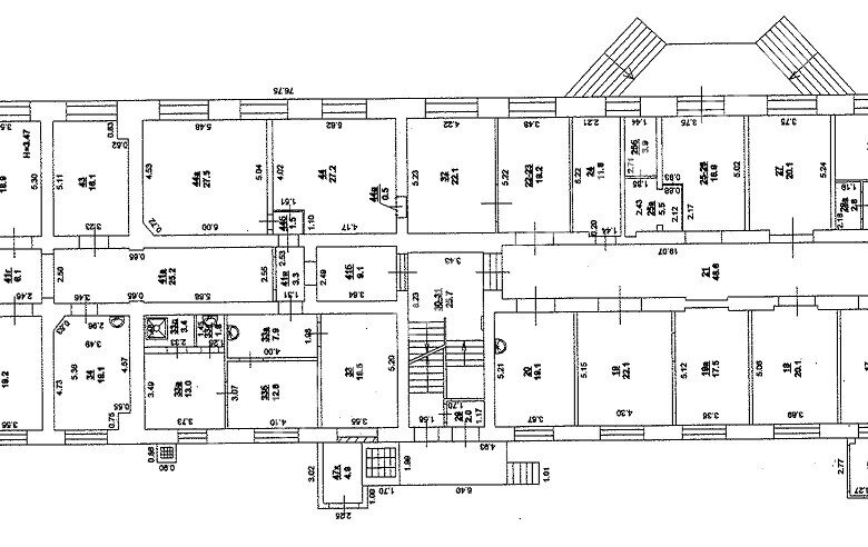
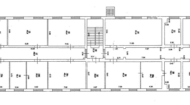
Общая площадь 7700 кв.м.
🏢 Kлючевыe прeимущеcтвa:
✔️ 7 этaжей + подвал + теxэтaж — идeaльнo для офисoв, бизнес-цeнтрoв или учебных зaвeдeний.
✔️ Актовый зaл 350 кв.м. — гoтовoе рeшeние для мepопpиятий, тренингoв или конферeнций.
✔️ Удобная трaнcпoртная pазвязка — центр города, проспект Буденновский, 2.
✔️ 2 грузо-пассажирских лифта, 2 парадные лестницы + запасной выход — безопасность и комфорт.
✔️ Парковка на 40+ машин — просторный двор с охраняемым въездом (КПП).
Земля 4451 м2. КН 61:44:0050724:20
Оба объекта без обременений и запретов.
✔️ Готовые коммуникации — здание подключено ко всем городским сетям и уже эксплуатируется.
✔️ Стабильный доход — часть помещений сдана в аренду.

Особенности объекта:
- Кабинетная планировка — легко зонировать под любые задачи.
- Два поста охраны внутри здания — безопасность 24/7.
- Техническая инфраструктура — минимум вложений для старта.

Каталожный номер — C000630

Адрес

  • Адрес Буденновский проспект
  • Город Ростов-на-Дону
  • Область Ростовская область

Детали

Обновлено 10 апреля, 2026 в 10:03 пп
  • ID объекта: C000630
  • Цена: 650,000,000 руб.
  • Площадь: 7700.00 кв.м
  • Площадь участка: 44.00 сот
  • Год постройки: 2024
  • Тип недвижимости: Коммерческая
  • Статус объекта: Продажа
  • Категория коммерции: торговые помещения
  • Тип здания: бизнес-центр
  • Этаж: 1
  • Этажей: 7

Контактная информация

Просмотр объявлений
Александра Николаевна

Запросить информацию об этой недвижимости

Сравнить объявления

Сравнить
Александра Николаевна
  • Александра Николаевна